日期:2016-07-14 点击: 关键词:企业无线网络覆盖中无线AP部署注意事项
企业无线网络覆盖中无线AP部署考虑因素:无线AP覆盖面积、无线AP覆盖范围、无线AP数量确定、各种建筑材料对无线讯号的影响、无线AP安装位置选择、无线AP频率规划、无线AP间漫游、无线AP功率控制等因素,以下是详细介绍:

1.1 无线AP覆盖面积:
室内容许最大覆盖距离为35~100米;
室外容许最大距离100~400米。
1.2 无线AP覆盖范围:
2.4G电磁波对于各种建筑材质的穿透损耗的经验值如下:
A.水泥墙(15~25cm): 衰减10~12dB
B.木板墙(5~10cm): 衰减5~6dB
C.玻璃窗(3~5cm): 衰减5~7dB
1.3 各种建筑材料对无线讯号的影响如下:
当无线AP与终端隔一座水泥墙时, AP 的可传送覆盖距离约剩下< 5米 有效距离;
当无线AP与终端中间隔一座木板墙时, AP 的传送距离约剩下< 15米 有效距离;
当无线AP与终端中间隔一座玻璃墙时, AP 的传送距离约剩下< 15米 有效距离。
1.4 无线AP数量确定:
对于面积小于150平方米的普通开放空间,如酒店公共休息区,小酒吧,咖啡厅,会议室,西餐厅等区域,预计用户数量不超过30个时,每个场所放置一个无线AP即可满足需求;
当空间较大,将以安装多个无线AP来满足无线覆盖需求;
当容量需求较大,即无线AP的覆盖区域内用户数目过多时,需在同一空间放置多个无线AP以增加容量;
1.5 无线AP安装位置选择:
单个房间中安装一个无线AP,尽量把无线AP安放在大厅的中央位置,最好选择放置于大厅的天花板上若安装两个无线AP,可将其放置在大厅的两个对角上。
1.6 无线AP频率规划:
在理论上,要求相邻频点的隔离度>=35db。
根据经验值,当相邻无线AP设定相同频点时, 要求间隔25米以上;当相邻无线AP设定相邻频点时, 要求无线AP间隔16米以上;当无线AP设定相隔频点时, 要求间隔12米以上。
要维持一个质量较好的WLAN,需要考虑企业无线网络覆盖范围内用户数量,单个无线AP的联机终端用户数不应超过30个。
1.7 无线AP间漫游:
无线AP每隔100ms发送一次探测信号,用户端可据此判断网络连接质量,然后决定接入哪一个无线AP。当终端在多个无线AP间的漫游时,由新的服务无线AP通过有线的形式通知原服务AP,已建立新的连接。
无线AP的漫游协议不包含在802.11中,而IAPP(Inter access point protocol)很有可能成为标准的漫游协议。
1.8 无线AP功率控制:
通过对无线AP输出功率的调整,可以控制无线网络覆盖范围内的用户数量,以保证企业无线网络质量。
无线AP产品出厂时功率统一,当用户需要更改功率时,可下载相应软件,对输出功率进行调整。
在当前WLAN的建设初期,主要满足企业无线网络覆盖需求,较少对无线AP功率进行控制。
1.9 外界干扰:
干扰源的种类;
微波炉;
防盗设施(商场门检);
其它大功率的电子设备;
所以AP应该远离干扰源1—2米。
1.10 总结:
AP规划应遵循以下原则:
1、无线网络覆盖原则
首选保证信号的无线网络覆盖范围能够用户要求;
2、易安装原则
规划选址应满足施工要求;
3、了解无线ap覆盖半径的技术参数;
4、无线ap固定在没有遮挡的厂房上方可以获得更好地信号效果,如天花板、立柱;
5、无线ap要选择工业级的,能耐高温、最好也能防潮;
6、建议采购通过网线取电的无线ap,这样每一个无线ap就不需要格外的变压器电源;
7、一个区域使用一个有线交换机搭载n个无线ap;
8、相邻的ap无线信道要设置不同的,IP段可以相同
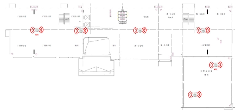
企业无线网络覆盖平面示意图

图1 企业无线网络覆盖架构图

图2 一层无线网络覆盖平面图

图3 二层无线网络覆盖平面图
以上是企业无线网络覆盖中无线AP部署注意事项,如果您有相关需求可以咨询在线客服了解更多相关内容,或致电400-0806-056,云烁服务 - 竭诚为您服务。